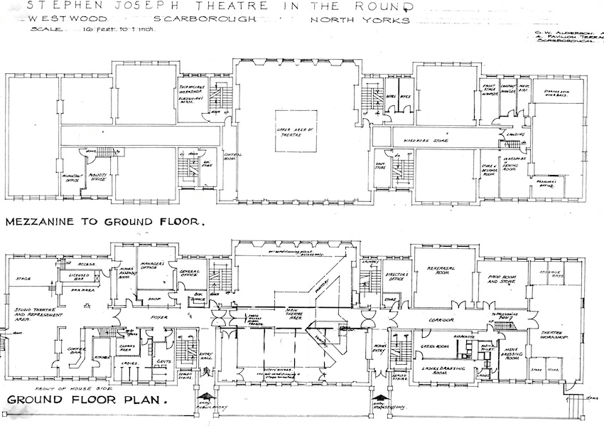
Stephen Joseph Theatre in the Round: Plan

This is the revised ground plan for the Stephen Joseph Theatre in the Round by its architect George W Alderson. Although essentially the same as when it opened in 1976, this revised design from the late '70s incorporates some of the changes to the space during its formative years such as the addition of a rehearsal room.

Please note, this plan is held in archive by Alan Ayckbourn and should not be reproduced or stored in any form without prior permission of the copyright holder.
Stacks Image 167
Stephen Joseph Theatre in the Round
It should always be borne in mind that the Stephen Joseph Theatre was never an ideal space as it was, essentially, a very quick renovation and alteration of an existing school building. The company had access to the ground and first floor of the building - with the rest of it still used as a technical college. As a result, many of the design decisions were influenced by the limitations of the building and the permissions the company had to make alterations.
Article and plan by and copyright of Simon Murgatroyd. Please do not reproduce the article or images without permission of the copyright holder.